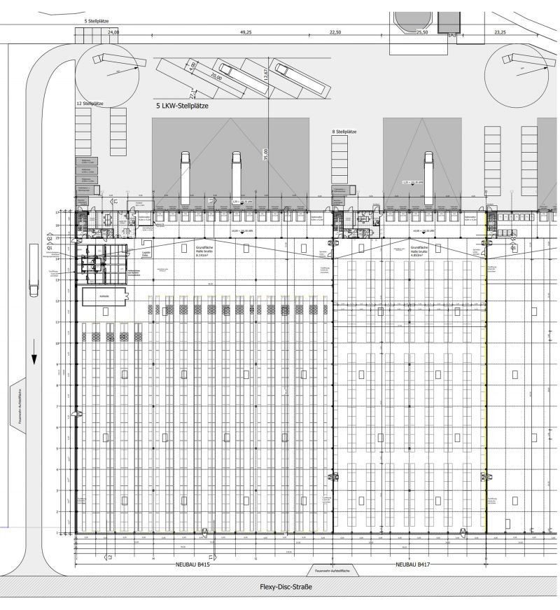
LOGISTIKHALLE SCHENKER AG, WILLSTÄTT
Baujahr
2023
BGF
14.000m2
Leistung
Generalplanung
Bauherr
Projektentwicklung Siemensstraße GmbH & Co. Willstätt
Nutzer
Schenker AG / Klocke Gruppe
LOGISTIKHALLE SCHENKER AG, WILLSTÄTT
Baujahr
2023
BGF
14.000m2
Leistung
Generalplanung
Bauherr
Projektentwicklung Siemensstraße GmbH & Co. Willstätt
Nutzer
Schenker AG / Klocke Gruppe